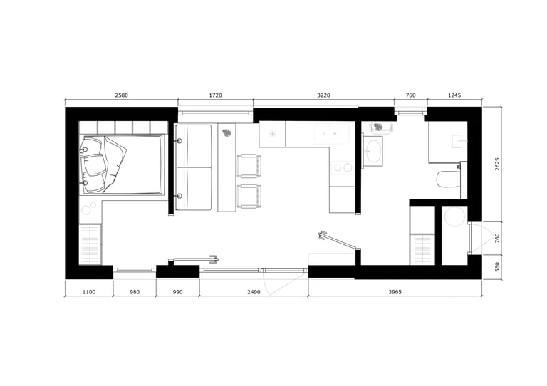
MIKRO NAMAS

Gamykloje surenkamo mikro namo interjero projektas

2022 metai

Užsakovas : Ecostructum

Mikro namas

Gamykloje surenkamo mikro namo interjero projektas 2022 metai Užsakovas : Ecostructum

1/12/20241 min skaitymo